Hívjon minket!
+36 52 416-218Kétgenerációs, felújított családi ház nagy telekkel Hajdúsámson – Sámsonkert központjában!
Ha tágas otthont keres nagy telekkel, modern műszaki tartalommal és rugalmas kialakítással, akkor ezt az ingatlant látnia kell!
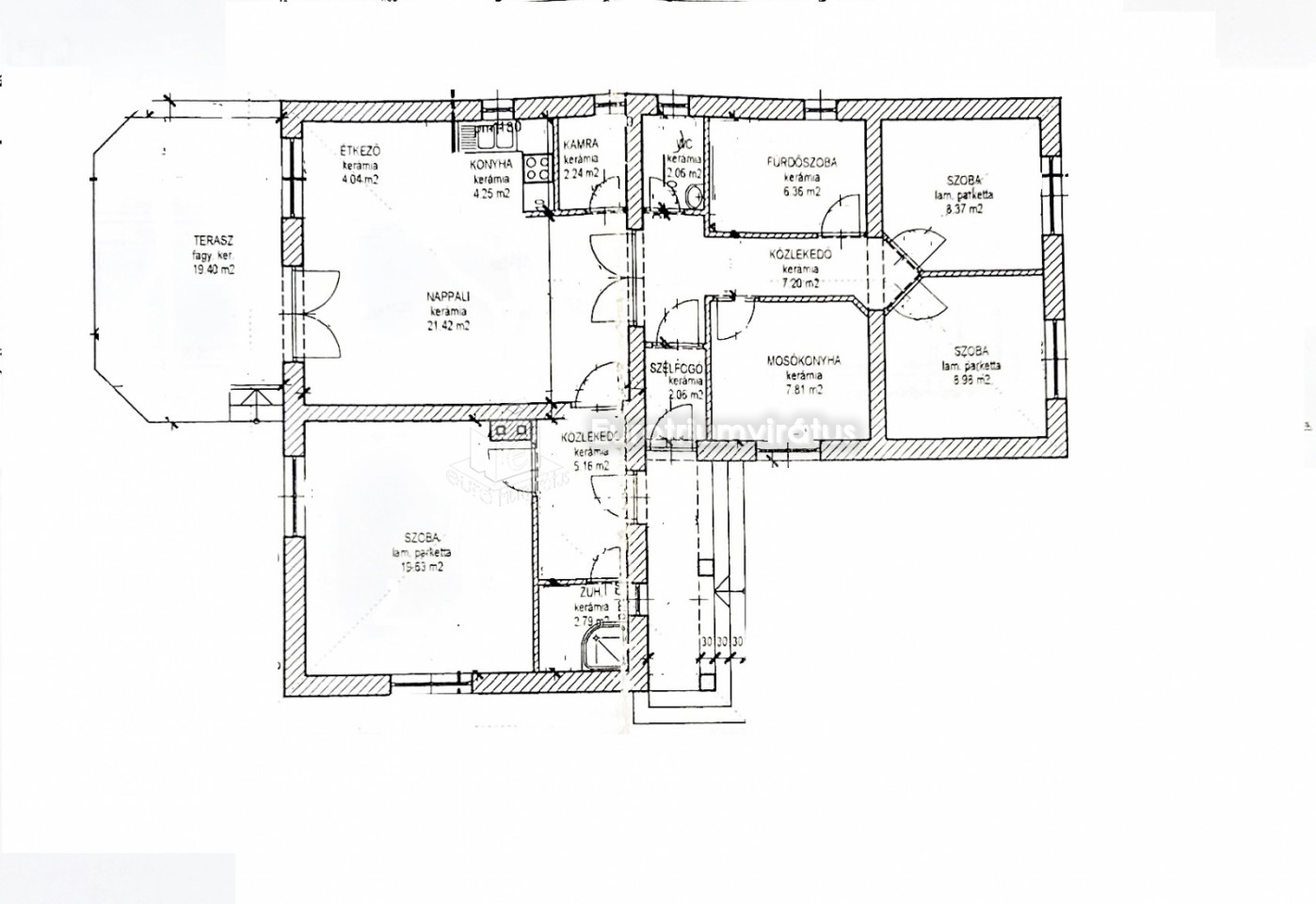
Eladó egy 2008-ban épült, nettó 102 m²-es, két külön bejárattal rendelkező családi ház, 1149 m²-es önálló, összközműves telken, aszfaltozott utcában, Sámsonkert központi részén.
Főbb paraméterek:
1149 m² önálló telek,102 m² hasznos alapterület, 20 m² terasz
Nappali + 4 félszoba (akár 5 szobássá alakítható)
2 fürdőszoba + külön WC
2 külön bejárat (kétgenerációs kialakítás)
CSOK+ kompatibilis (akár 3 gyermekre is megfelelő)
Műszaki tartalom – amire nem kell költenie
Beton alap, tégla falazat, Hőszigetelt homlokzat, Fa födém, betoncserép tető
Új födémszigetelés, Új kondenzációs kazán
Új villanyvezetékek, Műanyag nyílászárók, hőszigetelt üvegezéssel, Új burkolatok
Frissen festett beltér
Kiváló választás nagycsaládosoknak vagy két generáció együttélésére
A ház jelenleg két lakrészből áll:
- Első lakrész: konyha, fürdőszoba, szoba
- Második lakrész: nappali + 3 szoba, fürdőszoba, külön WC, tároló
Igény esetén egy fal kibontásával könnyedén egybenyitható, így egy nagy, tágas családi otthont kapunk.
Elhelyezkedés
Az ingatlan Hajdúsámson – Sámsonkert kedvelt, központi részén található.
Távolsági buszmegálló pár perc sétára elérhető, így Debrecen irányába is kényelmes a közlekedés.
Tágas telek, modern felújítás, kétgenerációs lehetőség – ritka kombináció ezen a környéken!